
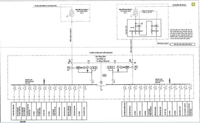
HỆ THỐNG TỦ NGUỒN PHÂN PHỐI XOAY CHIỀU 380/220VAC
Tủ phân phối nguồn 380/220VAC được sử dụng trong các trạm biến áp 110kV, 220kV, 500kV, nhà máy điện,… nhằm mục đích phân phối nguồn điện xoay chiều 1 pha/3 pha để đảm bảo cấp nguồn công tác vận hành trạm, thi công cải tạo và cho các máy có công suất lớn (chiếu sáng sân trạm, máy bơm nước,…). Ngoài ra còn cung cấp nguồn 3 pha/1pha cho tủ sạc, bộ sạc chỉnh lưu cho hệ thống ắc quy.
Tủ phân phối nguồn AC được cung cấp nguồn từ máy biến áp tự dùng trong trạm, hoặc từ nguồn lưới địa phương bên ngoài, hoặc từ máy phát điện, …. Thông thường thì sẽ có 02 nguồn đầu vào để dự phòng lẫn nhau.



Đánh giá
Chưa có đánh giá nào.